Выполнены проекты электроснабжения, освещения, отопления, двух котельных (бесплатно) и водоснабжения для загородного дома с баней, общей площадью 398 кв.м., расположенного в ДНП «Ветеран» Домодедовского района Московской области.
В проекте электрики дома и бани разработаны следующие технические решения:

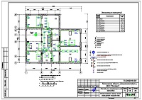
– Выполнен расчет схемы электроснабжения, расчетная электрическая мощность дома составила 20,88 кВт, бани – 4,80 кВт;
– Подобраны автоматические выключатели (УЗО) в количестве 69 шт., которые размещены в распределительных щитах дома и бани;
– Применены электрические распределительные щиты скрытого монтажа производства ABB;
– Электропроводка предусмотрена скрытым способом, с использованием кабеля ВВГ нг -LS (Конкорд) в тройной изоляции, общей протяженностью 2 057 метров;
– Предусмотрен контур повторного заземления и система молниезащиты;
– Подобран источник резервного питания дома и бани – дизельный генератор мощностью 6 кВт;
– Использованы технологии удобства – дистанционное управление освещением и работой приводов ворот по радиоканалу.
Цена проекта электрики – 32 139 руб., с учетом скидки 15%. Объем проекта – 30 листов.
Подробное описание выполненного проекта электрики дома с баней в ДНП «Ветеран».
В проекте отопления, теплого пола, водоснабжения и котельных дома и бани выполнена разработка следующих технических решений:

– Предусмотрено две отдельных котельных, размещенных в доме и бане;
– В котельной дома расположен напольный чугунный котел Buderus Logano мощностью 44 кВт, коллектор котельной Meibes, с гидрострелкой и тремя насосными группами, накопительный бойлер Buderus Logalux объемом 200 литров;
– В котельной бани размещен настенный газовый котел Buderus Logamax мощностью 18 кВт, насосно-смесительный модуль Meibes Kombimix с тремя контурами, бойлер горячей воды 160 литров;
– Выполнен расчет отопления дома и бани, расчетный расход тепла на отопление дома составил 25,7 кВт, на отопление бани – 10,9 кВт;
– Подобраны приборы отопления – радиаторы Kermi и конвекторы Varmann (только для дома);
– Схема радиаторного отопления дома и бани коллекторно-лучевая, с трубопроводами из сшитого полиэтилена Rehau Flex;
– Водоснабжение предусмотрено по тройниковой схеме, с рециркуляцией горячей воды через проходные водорозетки и полотенцесушители;
– Водяной теплый дома и бани предусмотрен на площади 85 м.кв.
Вариант отопления «Комфортный», стоимость проекта отопления – 46 189 руб., с учетом скидки 15%, проект котельных бесплатно. Объем проекта 63 листа.
Подробное описание выполненного проекта отопления дома с баней общей площадью 398 м.кв.
