Выполнены проекты инженерных систем – электрики, котельной (бесплатно), отопления, водоснабжения и канализации для загородного дома из бревна с баней и гаражом, общей площадью 198 кв.м., расположенного в КП «Ивушкино» Домодедовского района Московской области.
Проект электрики деревянного дома площадью 198 м.кв. с баней и гаражом содержит следующие технические решения:

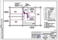
– Выполнен расчет схемы электроснабжения, электрическая мощность всех строений составила 15,27 кВт;
– Автоматические выключатели (УЗО) в количестве 48 шт., которые размещены в 3-х распределительных щитах ABB, по одному для каждого из строений;
– Электропроводка предусмотрена комбинированным способом, скрытым – с использованием кабеля ВВГ нг -LS в тройной изоляции, и открытым – витым ретро-проводом Bironi;
– Общая протяженность электропроводки 2005 метров;
– Предусмотрено резервное электропитания, источником которого является дизельный генератор мощностью 15 кВт, расположенный в гараже.
Цена проекта электрики – 15988 руб., с учетом скидки 15%. Объем проекта – 26 листов.
Подробное описание выполненного проекта электрики дома с баней в в КП «Ивушкино».
Проект отопления, теплого пола, водоснабжения и котельной загородного дома в КП «Ивушкино» содержит следующие основные технические решения:

– Вариант отопления «Комфортный», с теплым полом и погодозависимой автоматикой котельной;
– Индивидуальная котельная размещена в гараже, использован напольный газовый конденсационный котел Vaillant ecoVIT/5 мощностью 34 кВт;
– В индивидуальной котельной предусмотрено шесть контуров теплоснабжения;
– Приготовление горячей воды предусмотрено при помощи накопительного бойлера Vaillant uniSTOR, объемом 200 литров;
– Выполнен расчет отопления, , общий расход тепла на отопление дома, бани и котельной составил 28,67 кВт;
– Схема радиаторного отопления дома и бани коллекторно-лучевая, с трубопроводами из полиэтилена Rehau RAUTITAN flex, приборы отопления – стальные трубчатые радиаторы «Гармония» (КЗТО) и стальные панельные радиаторы Kermi;
– Водяной теплый пол дома и бани предусмотрен на площади 97 м.кв., 12 петель;
– Водоснабжение предусмотрено по коллекторной схеме с использованием трубопроводов из сшитого полиэтилена Rehau, выполнен расчет 27-и точек водопровода;
– Система канализации безнапорная, общее количество точек канализации 13 шт., трубопроводы раструбные Синикон.
Стоимость проекта отопления, теплого пола, водоснабжения и канализации – 51 000 руб., с учетом скидки 15%, проект котельной бесплатно. Объем проекта 46 листов.
Подробное описание выполненного проекта отопления, водопровода и канализации дома площадью 198 м.кв. с баней и гаражом в в КП «Ивушкино» Московской области.
