Для загородного дома со стенами из газобетонных блоков (утеплитель кровли – минеральная вата 200мм), площадью 159 м.кв., расположенного в дер. Яковлево Московской области, разработаны проекты внутренних инженерных систем: электрики, котельной, отопления, водоснабжения и канализации.
В проекте отопления, водоснабжения и канализации, по заданию Заказчика, предусмотрены следующие основные технические решения:
– Вариант котельной и отопления «Комфортный», с погодозависимой автоматикой и дополнительным GSM-модулем ZONT для контроля работы газового котла отопления;
– Предусмотрен напольный газовый котел Protherm Медведь 30KLOM, мощностью 26 кВт,который размещен в помещении котельной 1-го этажа дома;
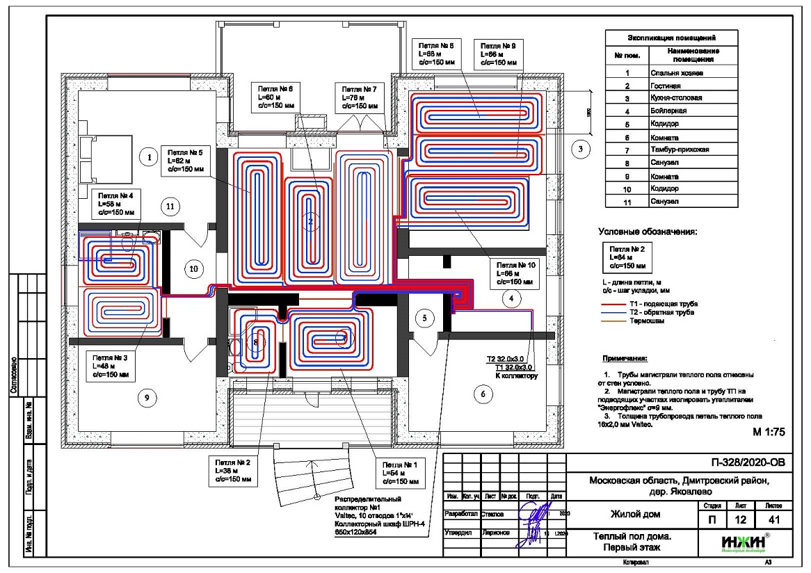
– Контуры теплоснабжения котельной – радиаторное отопление дома, теплый пол и горячее водоснабжение снакопительным бойлером Protherm, которые подключены к распределительному коллектору Meibes;
– Выполнен расчет отопления, расход тепла на отопление дома составил 16,8 кВт, удельные теплопотери 94,5 Вт/м.кв.;
– Отопление и водоснабжение дома в дер. Яковлево предусмотрены по коллекторно-лучевой схеме, с трубопроводами из металлопластика Valtec;
– Приборы для системы отопления дома – стальные панельные радиаторы KERMI с нижним подключением (из пола) и встроенный в пол конвектор Varmann с естественной конвекцией;
– Водяной теплый пол проектом предусмотрен на площади 69 м.кв., коллектор теплого пола Valtec – на 10 отводов;
– Водоснабжение в доме предусмотрено с рециркуляцией горячей воды через полотенцесушители, выполнен расчет 27-ми точек внутреннего водопровода;
– Внутренняя канализация комбинированная – безнапорная, с напорным участком в подвале, отвод стоков от санитарно-технических приборов предусмотрен в септик, выполнен расчет 12-и точек канализации.
Стоимость проекта отопления водоснабжения и канализации дома в дер. Яковлево– 22 390 руб. со скидкой 10%, проект котельной бесплатно, объем проекта отопления 42 листа.

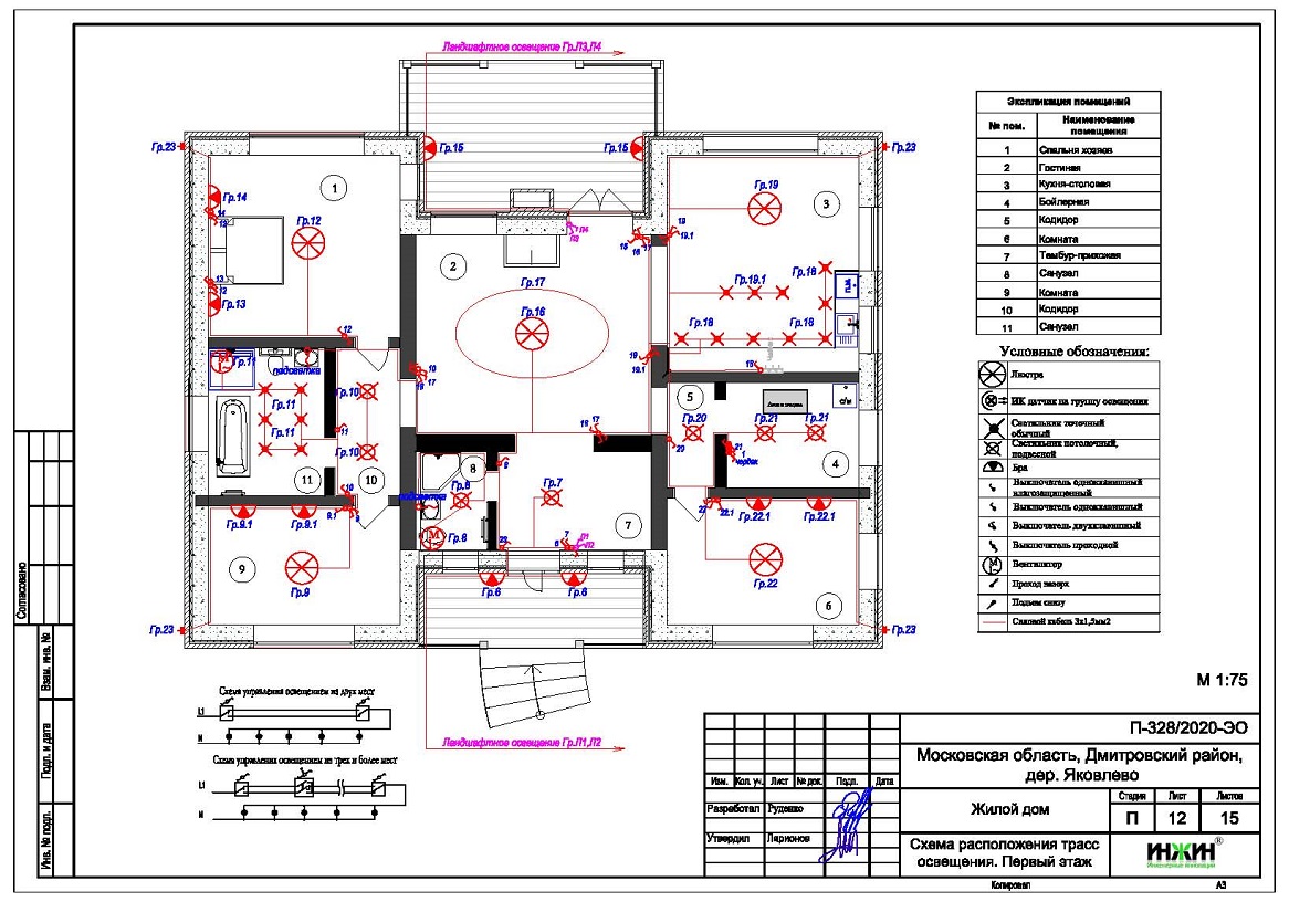
Проект электрики дома в дер. Яковлево содержит следующие технические решения:
– Выполнен расчет схемы электроснабжения, электрическая мощность дома составила 21,04 кВт, с учетом коэффициента спроса 0,6, принятого согласно СП 256.1325800.2016;
– Автоматические выключатели (УЗО) в количестве 37 шт., которые размещены в распределительном щите ABB (навесной корпус);
– Электропроводка предусмотрена скрытым способом, в конструкции стен и пола дома;
– Общая протяженность электропроводки 955 метров;
– Резервное электропитание дома при помощи однофазного бензинового генератора мощностью 7 кВт (по выбору Заказчика).
Цена проекта электрики – 13 594 руб. со скидкой 10%. Объем проекта электрики – 16 листов.
Подробное описание выполненного проекта электрики дома в дер. Яковлево.

